Bureau, Les Achards
68 m²

A VENDRE – LES ACHARDS (85150)

PROGRAMME NEUF

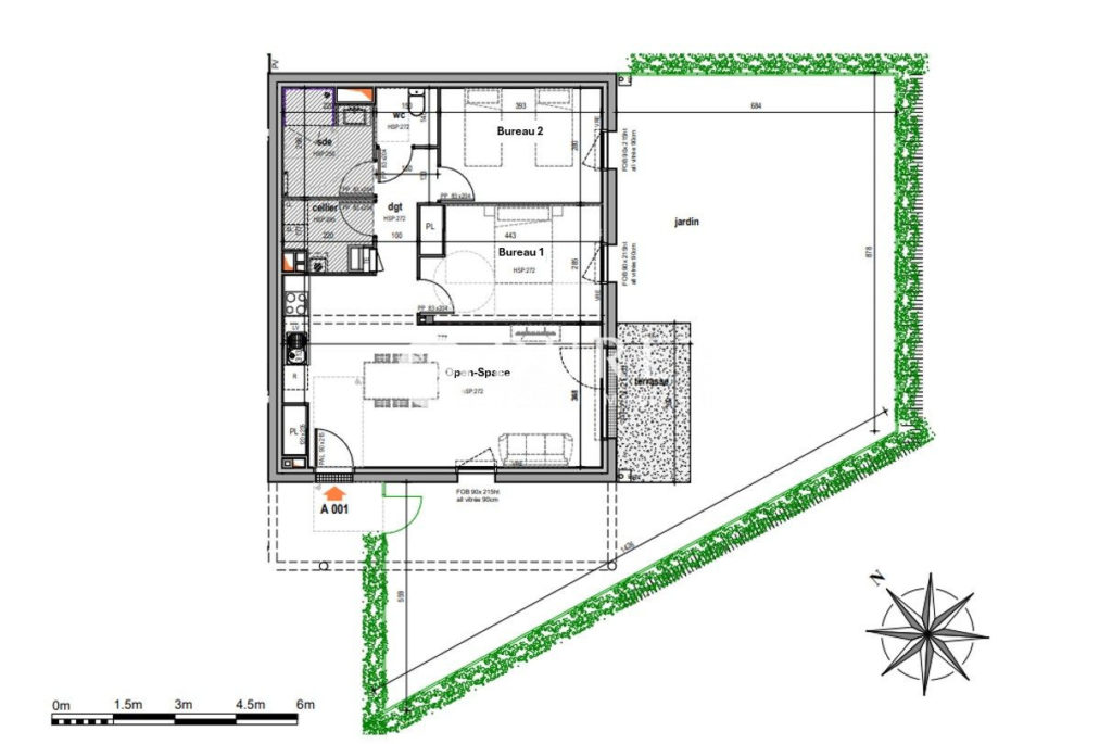
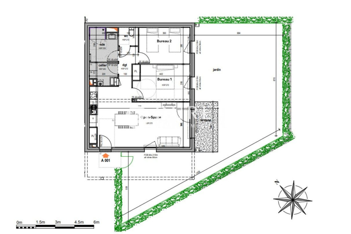
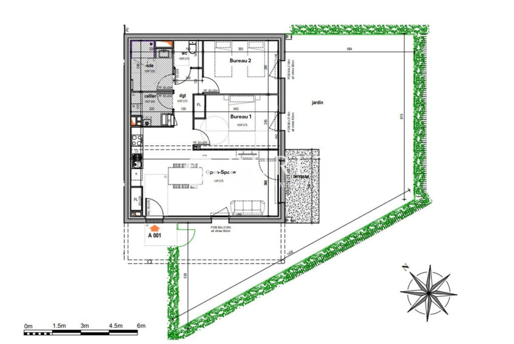
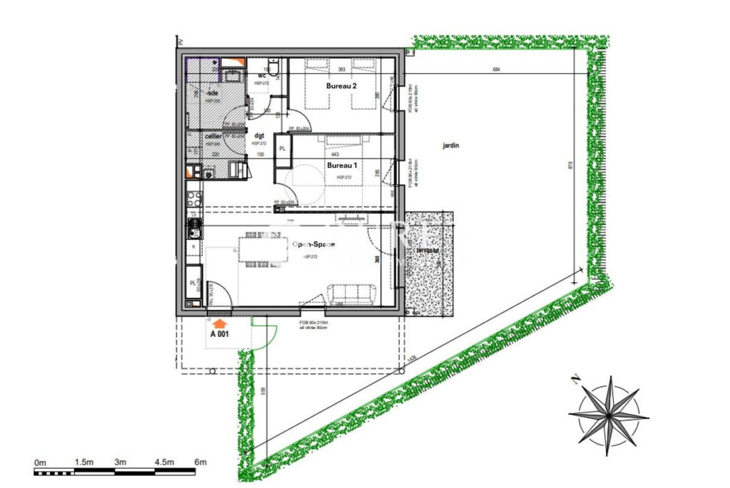
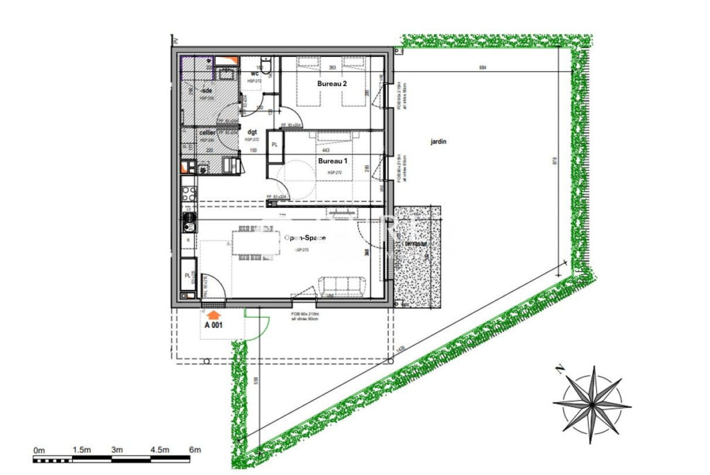
Au sein d’un immeuble mixte, découvrez ce plateau de bureaux d’environ 68m², idéalement situé au coeur de La-Mothe-Achard.

Descriptif du bien :
Un vaste open-space avec un coin tisanerie
Deux bureaux
Une salle d’archives/réserve
Un sanitaire
Terrasse privative
Atouts : Ce local bénéficie de deux places de parking privatives (parking aérien), un avantage rare pour la zone, offrant un accès facilité à vos collaborateurs et clients.

Situation : Profitez d’un emplacement stratégique à proximité de la gare? des commodités et des axes principaux.

Ce local est idéal pour accueillir une activité professionnelle ou libérale en quête de fonctionnalité et de confort.

Livraison deuxième trimestre 2026.

Pour plus d’informations, contactez DURET L’IMMOBILIER D’ENTREPRISE, votre spécialiste en immobilier d’entreprise.

Accueil téléphonique non stop du Lundi au Vendredi de 8h30 à 18h.

Les informations sur les risques auxquels ce bien est exposé sont disponibles sur le site Géorisques : www.georisques.gouv.fr

ANE

225 000 € H.T

Votre contact

En savoir plus

 

Vous souhaitez en savoir plus

Afficher le numéro

    Les champs marqués d'un * sont obligatoires

    Prenez votre RDV en ligne



    * Les données collectées sont obligatoires et sont utilisées pour le suivi de la relation commerciale initiée à la suite de cette demande de contact et l’envoi de communications commerciales en ce sens. Ces données personnelles pourront donner lieu à l’exercice du droit d’accès, de rectification et d’opposition dans les conditions prévues par la loi n° 78-17 du 6 janvier 1978 modifiée relative à l’informatique, aux fichiers aux libertés. conformément à la politique de confidentialité