Bureau, Les Achards
			            	68 m²
                        
        A VENDRE – LES ACHARDS (85150)
PROGRAMME NEUF
Au sein d’un immeuble mixte, découvrez ce plateau de bureaux d’environ 68m², idéalement situé au coeur de La-Mothe-Achard.
Descriptif du bien :
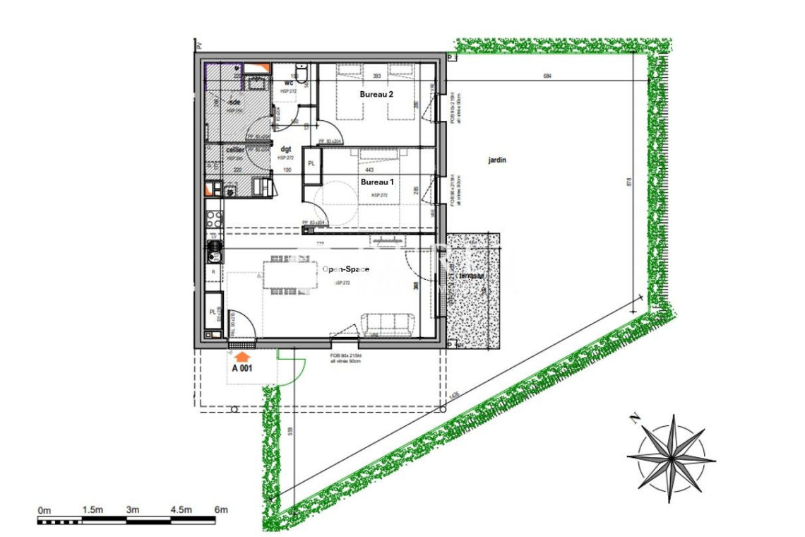
Un vaste open-space avec un coin tisanerie
Deux bureaux
Une salle d’archives/réserve
Un sanitaire
Terrasse privative
Atouts : Ce local bénéficie de deux places de parking privatives (parking aérien), un avantage rare pour la zone, offrant un accès facilité à vos collaborateurs et clients.
Situation : Profitez d’un emplacement stratégique à proximité de la gare? des commodités et des axes principaux.
Ce local est idéal pour accueillir une activité professionnelle ou libérale en quête de fonctionnalité et de confort.
Livraison deuxième trimestre 2026.
Pour plus d’informations, contactez DURET L’IMMOBILIER D’ENTREPRISE, votre spécialiste en immobilier d’entreprise.
Accueil téléphonique non stop du Lundi au Vendredi de 8h30 à 18h.
Les informations sur les risques auxquels ce bien est exposé sont disponibles sur le site Géorisques : www.georisques.gouv.fr
ANE
225 000 € H.T
Votre contact
 
                Prendre RDV
 
                                 
                             
                            